新白河移動式スタジオ

新白河移動式スタジオ



デザイン & 暮らしやすさを考えた
ユーディーホームの住まい。
デザイン性と暮らしやすさを両立させた
ユーディーホームのデザイナーズハウス。
暮らしやすさを考えた間取りに、
ちょっとかっこいいデザインを取り入れ
他とは違う、おしゃれな家を作り上げました。
期間限定移動式スタジオ見学予約受付中!
ほぼ毎日完全予約制で見学 OK福島県西白河郡西郷村小田倉大平付近
OPEN:9:00-18:00

新白河移動式スタジオの
見どころ

見どころ01塗り壁× 大谷石× レッドシダー
自然素材をふんだんにあしらった外観
淡いグレージュの塗り壁、 温かみのある風合いの大谷石
木のぬくもりを感じるレッドシダーを組み合わせた
自然素材をあしらった今時のスタイル。

見どころ02暮らしやすさと
デザインを両立させた家
暮らしやすさを考えた間取りに、 ちょっとかっこいいデザインを取り入れ、他とは違う、おしゃれな家を作り上げました。室内は年中過ごしやすい室温に保つ&省エネの全館空調を搭載しています。

見どころ03「デザインと快適な暮らし」を
両立させた住まい
デザイン性と暮らしに焦点を当て、玄関からキッチンへのアクセスのしやすさを考えた広い土間づくりの玄関。家全体をストレスなく回遊できる間取り、生活感を消す+大容量を併せ持つ収納スペースなど、自由設計ならではのこだわりを詰め込みました。

見どころ04夜でも昼間でも空間に映える
プライベートバーのようなキッチン
スタイリッシュで人気な素材のモールテックスを使った格好良いキッチンカウンター。 キッチンは、ステンレス製でお手入れがしやすく、室内の雰囲気にもぴったり。使用している設備は、全て弊社の標準仕様です。
ユーディーホームの施工事例WORKS



土間スペースを設けたモダンスタイルの平屋
福島県 K様邸
プライベート性を重視したL字型平屋の住まい。すっきりとシンプルにまとめられた木のぬくもりを感じられるモダンスタイルで大きな窓から光が注ぐ明るいリビングは無垢の杉床で柔らかな印象に。天井にもレッドシダーをあしらい、自然素材をふんだんに取り入れました。



無垢の木と白の家
栃木県 N 様邸
無垢床のあたたかみ感じる、白を基調としたシンプルスタイルのお住まい。シャープでエッジの効いたガルスパンの外壁に、表情深い屋久島地杉を組み合わせたスタイリッシュな印象の外観が特徴です。仕切りをなくして“一つの大きな空間”にしたかった、という奥様こだわりのLDKは、玄関・土間収納のどちらからもリビングへ上がることができる、土間続きに。
期間限定公開!
マテリアルにこだわったモダンな
デザイナーズハウス





自然素材をあしらった外観と家全体をストレスなく回遊できる間取りを取り入れたユーディーホームならではのデザイナーズハウス。

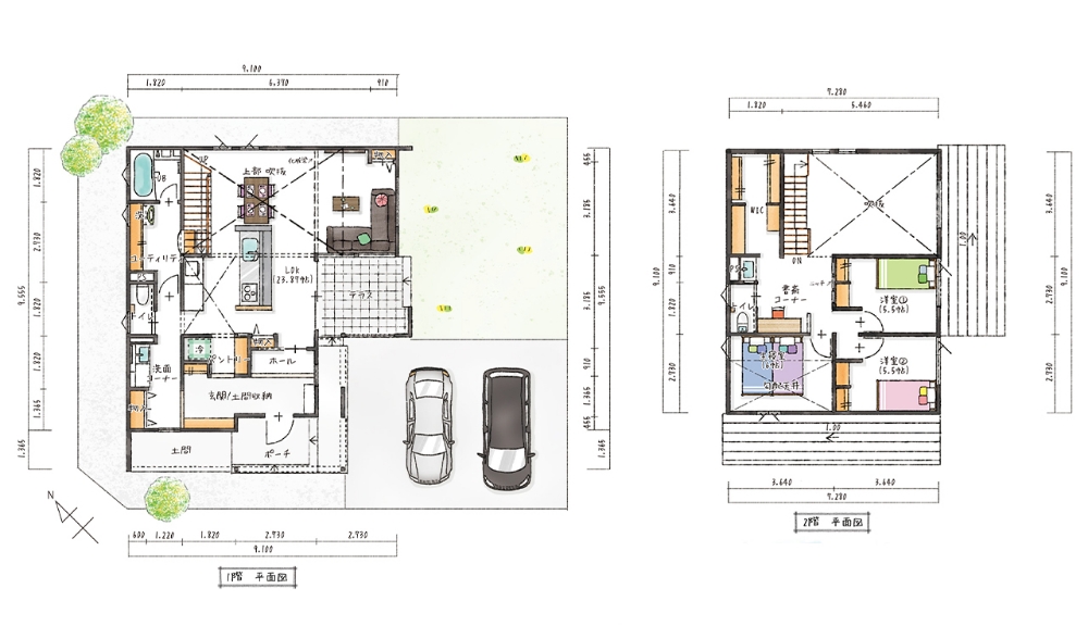
| 1F面積 | 69.56㎡ (21.04坪) | 敷地面積 | 231.43㎡ (70.01坪) |
|---|---|---|---|
| 2F面積 | 49.69㎡ (15.03坪) | 延床面積 | 119.24㎡ (36.07坪) |
新白河移動式スタジオの
見学ポイント!
- 01実際の住まいを想定した造り
- 02家事効率を考えた回遊動線のある間取り
- 03各設備は全てユーディーホーム標準仕様
- 04完全予約制でゆっくり見学
- 05見学会中に家づくりの無料相談もOK
アクセスマップACCESS MAP
24時間受付予約フォーム
RESERVE
フォームよりお問い合わせいただきますと、すぐに返信メールが送信されます。
数分お待ちいただいても折り返しメールが届かない場合は、お使いのメールサービス、メールソフト、ウィルス対策ソフト等の設定により「迷惑メール」と認識され、メールが届かない場合があります。
その場合は「迷惑メールフォルダ」等をご確認いただくかお使いのサービス、ソフトウェアの設定をご確認ください。
また、迷惑メールフォルダにも届いていない場合はドメイン指定などされている場合があります。
ご希望日の3日前までにご予約ください。
ABOUT エイトナインホームのこと

お問い合わせ
エイトナインホームの家づくりに興味のある⽅は
「来店予約をしたいのですが…」とお気軽にお問い合わせください。
営業時間:9:00〜18:00(⽔曜定休)








